Natūralios konvekcijos įleidžiami grindiniai konvektoriai FC skirti patalpų su vitrininiais langais šildymui. Jų korpusai visiškai paslėpti grindyse, todėl praktiškai nematomi. Vienintelis matomas elementas -uždengiamosios grotelės, kurių medžiaga ir spalva pritaikomi grindų dangai. Konvektoriai montuojami prie pat langų, neleisdami šalčiui, einančiam nuo langų plisti į patalpas. Tuo pačiu jie sukuria šilto oro užuolaidą, užkertančia kelią langų rasojimui net ir šalčiausiomis žiemos naktimis.
Korpusas pagamintas iš nerūdijančio plieno, rėmelis – anoduoto aliuminio, šilumokaičio vamzdis iš vario, o šilumokaičio plokštelės – iš aliuminio. Tai leidžia suteikti šioms konvektoriaus dalims 10 metų garantiją.
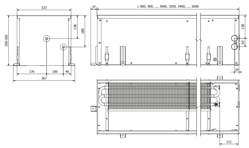
Išskirtinis korpusų standumas ir didelis atramų kiekis suteikia prietaisui didelį atsparumą apkrovoms.
Visos atraminės detalės turi garso izoliavimo elementus, sumažinančius triukšmą, pereinantį į žemesniame aukšte esančias patalpas.
Maksimalus darbinis slėgis 20 bar, bandymo slėgis 30 bar. Maksimali darbinė temperatūra 110°C.
Standartinė komplektacija yra su tvirtinimo detalių komplektu.
Galia nurodyta prie temperatūrų 75/65/20°C.
Pastaba: Grotelės užsakomos atskirai.








