Ypatumai:
• židinio ugniakuras pagamintas iš aukštos kokybės CORTEN plieno, kuris pasižymi atsparumu korozijai;
• aukštas efektyvumo koeficientas;
• galima užsakyti šviesias arba tamsias šamotines plytas degimo kamerai – palaikomas nuolatinis aukštos temperatūros degimas ir šilumos sklaida sudegus kurui;
• reguliuojamo aukščio kojelės;
• pirminio ir antrinio oro reguliavimas viena sklende;
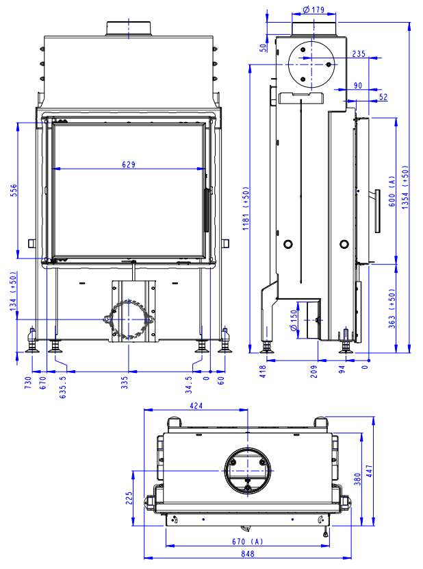
• durelių išmatavimai: aukštis – 556 mm, plotis – 629 mm;
• su švaraus stiklo palaikymo sistema;
• galia reguliuojama ribose 4,8 – 12,6kW, nominali galia: 9,7kW;
• su centriniu oro padavimu;
• ugniakuro kaina nurodyta be šamotinių plytų;
• grotelės su pelenų dėže užsakomos papildomai.
Ugniakuro korpusui suteikiama 5 metų garantija.



