Ypatumai:
• židinio ugniakuras pagamintas iš aukštos kokybės CORTEN plieno, kuris pasižymi atsparumu korozijai;
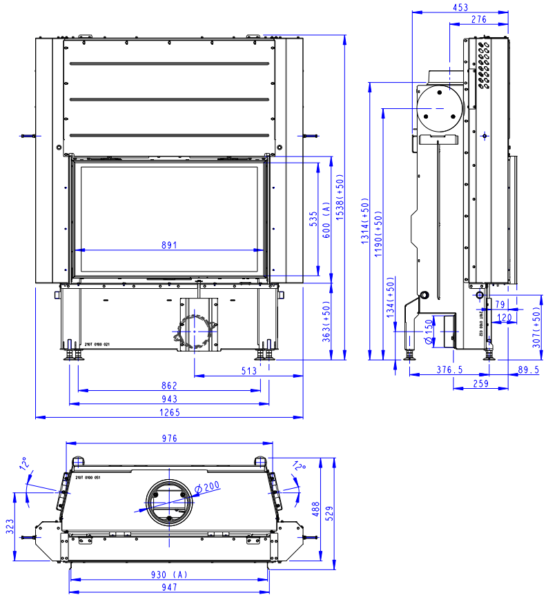
• su naujausia pakėlimo sistema Silent Lift tyliam ir paprastam durų pakėlimui;
• aukštas efektyvumo koeficientas;
• galima užsakyti šviesias arba tamsias šamotines plytas degimo kamerai – palaikomas nuolatinis aukštos temperatūros degimas ir šilumos sklaida sudegus kurui;
• reguliuojamo aukščio kojelės;
• pirminio ir antrinio oro reguliavimas viena sklende, pagaminta iš nerūdijančio plieno;
• durelių išmatavimai: aukštis – 535 mm, plotis – 891 mm;
• su švaraus stiklo palaikymo sistema;
• galia reguliuojama ribose 6,5 – 16,9kW, nominali galia 13kW;
• su centriniu oro padavimu;
• ugniakuro kaina nurodyta be šamotinių plytų;
• grotelės su pelenų dėže užsakomos papildomai.
Ugniakuro korpusui suteikiama 5 metų garantija.




